Description
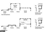
Welcome to the Highlands at Back Creek- a small community of only 42 lots. Most lots back to open space, and they're all at least 3/4 acre. Tired of massive developments with no sense of community? This is the place for you;) Check out some of the many standard features- 9' first and second-floor ceilings and crown molding in the living room, dining room, and foyer. Shaw hardwood flooring in the foyer, kitchen, dining room, and powder room. 6'x6' ceramic tile in the hall and owner's bath. Gourmet kitchen with granite countertops, stainless steel appliances, double wall oven, microwave, separate cooktop, and dishwasher. Side entry garage with a garage door opener. Energy-efficient HVAC- LENNOX furnace, LENNOX 14 SEER central air conditioning, wifi-thermostat, and Low-E Argon windows. The CORONADO is a well-designed floor plan.One of the front doors leads to a 2-story foyer with a unique turned staircase, and the other leads to the mudroom. The mudroom, located off the garage, is a perfect place to add additional built-ins for coats, shoes, book bags, etc. On one side of the house are the living room and dining room. The home office is located at the front of the house. Everyone loves an open floor plan, and this house doesn't disappoint. The family room (with a rear staircase to the second floor) is next to the kitchen, with a beautiful fireplace, mantel, and marble surround. On the second floor are three nice-sized secondary bedrooms and a laundry room with a handy laundry tub. The Owner's suite has 2 WALK-IN closets, and the Owner's bath has split vanities and a large shower. Give me a call- let me help you pick a lot and design your stunning new home. Use 129 Ayshire Dr, Middletown, as the GPS address for the model. Matterport tours may reflect custom options and may not be the standard layout. The pictures shown are for marketing purposes only and are not of the actual house. THIS IS A TO-BE-BUILT HOME. County, city, and school taxes, assessments, and square footage are approximate. If you are working with a realtor, the agent's client must acknowledge that a realtor is representing them during their first interaction with JS Homes, and the realtor must accompany their client on the first visit.
-
4BEDS
-
0.76ACRES
-
2BATHS
-
11/2 BATHS
-
3,503SQFT
-
$228$/SQFT
School Information
Description
Welcome to the Highlands at Back Creek- a small community of only 42 lots. Most lots back to open space, and they're all at least 3/4 acre. Tired of massive developments with no sense of community? This is the place for you;) Check out some of the many standard features- 9' first and second-floor ceilings and crown molding in the living room, dining room, and foyer. Shaw hardwood flooring in the foyer, kitchen, dining room, and powder room. 6'x6' ceramic tile in the hall and owner's bath. Gourmet kitchen with granite countertops, stainless steel appliances, double wall oven, microwave, separate cooktop, and dishwasher. Side entry garage with a garage door opener. Energy-efficient HVAC- LENNOX furnace, LENNOX 14 SEER central air conditioning, wifi-thermostat, and Low-E Argon windows. The CORONADO is a well-designed floor plan.One of the front doors leads to a 2-story foyer with a unique turned staircase, and the other leads to the mudroom. The mudroom, located off the garage, is a perfect place to add additional built-ins for coats, shoes, book bags, etc. On one side of the house are the living room and dining room. The home office is located at the front of the house. Everyone loves an open floor plan, and this house doesn't disappoint. The family room (with a rear staircase to the second floor) is next to the kitchen, with a beautiful fireplace, mantel, and marble surround. On the second floor are three nice-sized secondary bedrooms and a laundry room with a handy laundry tub. The Owner's suite has 2 WALK-IN closets, and the Owner's bath has split vanities and a large shower. Give me a call- let me help you pick a lot and design your stunning new home. Use 129 Ayshire Dr, Middletown, as the GPS address for the model. Matterport tours may reflect custom options and may not be the standard layout. The pictures shown are for marketing purposes only and are not of the actual house. THIS IS A TO-BE-BUILT HOME. County, city, and school taxes, assessments, and square footage are approximate. If you are working with a realtor, the agent's client must acknowledge that a realtor is representing them during their first interaction with JS Homes, and the realtor must accompany their client on the first visit.
Related Properties
©2026 Bright MLS, All Rights Reserved. IDX information is provided exclusively for consumers' personal, non-commercial use and may not be used for any purpose other than to identify prospective properties consumers may be interested in purchasing. Some properties which appear for sale may no longer be available because they are for instance, under contract, sold, or are no longer being offered for sale. Information is deemed reliable but is not guaranteed accurate by the MLS or Kristin Miller Team of Northrop Realty. Some real estate firms do not participate in IDX and their listings do not appear on this website. Some properties listed with participating firms do not appear on this website at the request of the seller. Data last updated: 2026-04-10T07:54:04.467.
